- This Wednesday’s public meeting will cover two development proposals: a commercial development at the southwest corner of Stouffville Road and Highway 48, and a seniors care facility at 188 Sandiford Drive.
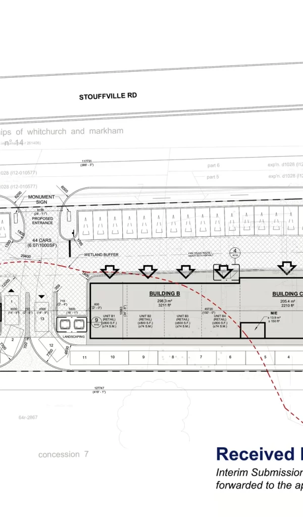
- FLATO has proposed the interim commercial development at 5211, 5223 and 5241 Stouffville Road, which includes two single-storey buildings and 30 parking spaces.
- FLATO has expressed a desire to build a higher density mixed-use project on the site; however, they do not currently see the market justifying it.
- “The applicant proposes the commercial development as an interim use until such time that the market for higher density and mixed-use development emerges for this area and site,” the staff report explains.
- The project will provide new commercial units and restaurants with a drive-through proposed for each building.
- “Permitting…the proposed commercial development would…activate this vacant gateway to the Town,” the report notes.
- The seniors care facility on Sandiford would consist of two six-storey buildings and include 212 units, or a total of 242 beds, and 153 parking spaces.
- The application is a revised proposal for the site, expanding on a 2019 plan consisting of a three and six-storey building.
- The new facility aims to provide independent living, supported independent living, and assisted living settings, according to the staff report.
- Residents can attend the 7 p.m. meeting at 111 Sandiford Drive to learn more and comment on the applications.
- All comments will form part of the public record and help inform future decisions regarding the two projects.
May 31 Public Meeting: Interim FLATO Development & Sandiford Seniors Care Facility